WeihnachtsbaumDEG_IconDEG_IconDEG_IconDEG_IconDEG_IconDEG_IconDEG_IconDEG_IconDEG_IconDEG_IconDEG_IconDEG_Icondegewo_ico_mailDEG_IconDEG_IconDEG_IconDEG_IconDEG_IconDEG_IconDEG_IconDEG_IconDEG_IconDEG_IconDEG_IconDEG_IconDEG_IconDEG_IconDEG_IconDEG_IconDEG_IconDEG_IconDEG_IconDEG_Icon
Objekt-Nr.: W1300-42113-0019-0602 Inserat deaktiviert

Erstbezug im degewo-Klimahaus!

Salvador-Allende-Straße 5 | 12559 Berlin
  • Nettokaltmiete: 654,47 €
  • Kaution: drei Nettokaltmieten
  • Betriebskosten (kalt): 126,34 €
  • Betriebskosten (warm): 131,46 €
  • Betriebskosten (kalt)/m²: 2,22 €
  • Betriebskosten (warm)/m²: 2,31 €
912,27 € Gesamt

Objektdetails

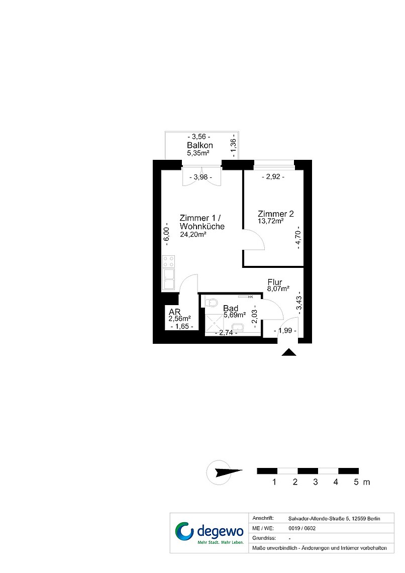
Zimmer 2
Wohnfläche 56,91 m²
Verfügbar ab ab sofort
Objektart Wohnung
Etage / Anzahl Etagen 6 / 8
Baujahr 2025
WBS benötigt Ja

Energieausweisdaten

Energieeffizienz A+
Ausweisart Bedarf
Primärer Energieträger Fernwärme

Beschreibung

Dieser energieeffiziente Neubau in Berlin Köpenick wurde in Holz-Hybrid-Bauweise errichtet. Es entstehen 112 Wohnungen in vier Aufgängen. Davon sind 77 Wohnungen barrierefrei und rund die Hälfte der Wohnungen werden vom Land Berlin gefördert. Alle Wohnungen sind mit einem Balkon und Fußbodenheizung ausgestattet. In jedem Aufgang befindet sich ein Aufzug. Das offene Erdgeschoss bietet Platz für ein Café, Stellplätze für PKW und Fahrräder sowie zwei E-Ladesäulen.

Lagedetails Umgebung

Bus 169,165, 269, N63, N65
Tram 27, 63, 67

Sonstiges

Bitte beachten Sie, dass zur Anmietung der Wohnung ein Wohnberechtigungsschein (WBS 160, 180 oder 220) benötigt wird (für zwei Räume).

Mindestmietdauer
Das Mietverhältnis wird für unbestimmte Zeit geschlossen und kann mit der gesetzlichen Kündigungsfrist gekündigt werden. Bitte beachten Sie, dass im Mietvertrag eine Mindestmietdauer von einem Jahr vereinbart wird.

Ausstattung

barrierefrei, bodenliegende Dusche, Balkon/Loggia, Abstellraum, Fußbodenheizung, Aufzug, Aufzug ebenerdig, Fern-/Zentralheizung, Fernwarmwasserversorgung

Vermietungsablauf

Fair und digital: Unser Vermietungsablauf ist datenschutzkonform und entspricht dem Allgemeinen Gleichbehandlungsgesetz.

Vermietung

degewo Köpenicker Wohnungsgesellschaft mbH

Postfach , 10772 Berlin

Die Karte kann nicht ausgespielt werden, da Sie die Google-Maps Cookies nicht akzeptiert haben. Bitte stimmen Sie den Cookie Bedingungen zu, um diesen Inhalt sehen zu können. Durch das Aktivieren werden Daten an Google übermittelt. Weitere Informationen können unserer Datenschutzerklärung entnommen werden.

Das finden Sie in der Nähe

  • Kitas, Schulen, Unis
  • Gesundheit
  • Freizeit
  • Einkauf
  • Sport
#