WeihnachtsbaumDEG_IconDEG_IconDEG_IconDEG_IconDEG_IconDEG_IconDEG_IconDEG_IconDEG_IconDEG_IconDEG_IconDEG_Icondegewo_ico_mailDEG_IconDEG_IconDEG_IconDEG_IconDEG_IconDEG_IconDEG_IconDEG_IconDEG_IconDEG_IconDEG_IconDEG_IconDEG_IconDEG_IconDEG_IconDEG_IconDEG_IconDEG_IconDEG_IconDEG_Icon
Objekt-Nr.: W1300-66226-0175-0502 Inserat deaktiviert

Renovieren und Einziehen - 2 Zimmer in Köpenick

Wendenschloßstraße 118 | 12557 Berlin
  • Nettokaltmiete: 325,07 €
  • Kaution: drei Nettokaltmieten
  • Betriebskosten (kalt): 88,47 €
  • Betriebskosten (warm): 80,13 €
  • Betriebskosten (kalt)/m²: 1,91 €
  • Betriebskosten (warm)/m²: 1,73 €
493,67 € Gesamt

Objektdetails

Zimmer 2
Wohnfläche 46,32 m²
Verfügbar ab ab sofort
Objektart Wohnung
Etage / Anzahl Etagen 5 / 5
Baujahr 1988
WBS benötigt Nein

Energieausweisdaten

Energiekennwert 82,00 kWh/(m²a)
Energieeffizienz C
Ausweisart Verbrauch
Primärer Energieträger Gas

Beschreibung

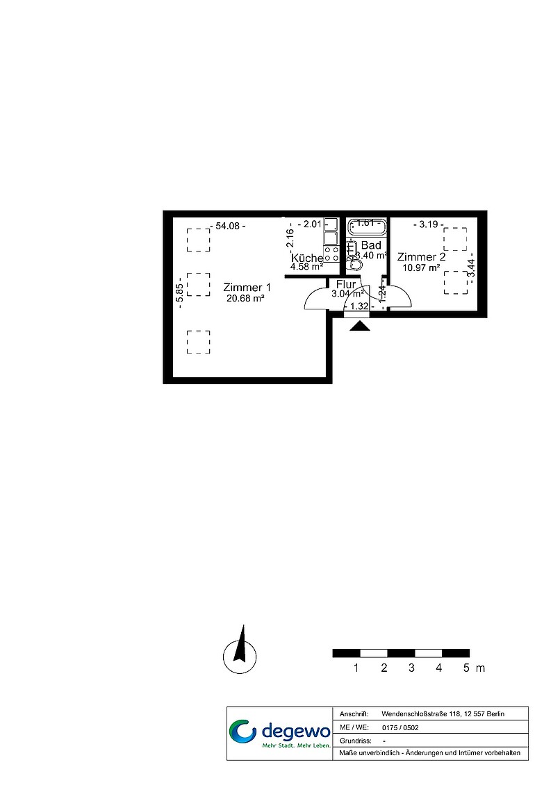
Der dargestellte Grundriss entspricht nicht vollständig den tatsächlichen Gegebenheiten. Die Wohnung verfügt über eine offene Wohnküche statt einer geschlossenen Küche. Die beigefügten Fotos veranschaulichen den tatsächlichen Zustand.

In der Wohnung sind noch Renovierungsarbeiten erforderlich. Um den äußerst angespannten Berliner Wohnungsmarkt zu entlasten, möchten wir diese Wohnung so schnell wie möglich den Wohnungssuchenden zur Verfügung stellen. Wenn Sie bereit sind, diese Arbeiten selbst auszuführen, werden wir Sie finanziell dabei unterstützen. So können Sie die Wohnung nach Ihren Wünschen gestalten.

Lagedetails Umgebung

Bus 162,164,165,N62,N65,N67,N69,N90; Tram 27,60,61,62,63,67,68,M17

Sonstiges

Die Anmietung der Wohnung ist entsprechend der Kooperationsvereinbarung Leistbare Mieten, Wohnungsneubau und Soziale Wohnraumversorgung zwischen den landeseigenen Wohnungsunternehmen und dem Land Berlin Haushalten mit einem Einkommen von mehr als 140% und bis 220% der Bundeseinkommensgrenzen nach § 9 Abs. 2 WoFG vorbehalten.

Mindestmietdauer
Das Mietverhältnis wird für unbestimmte Zeit geschlossen und kann mit der gesetzlichen Kündigungsfrist gekündigt werden. Bitte beachten Sie, dass im Mietvertrag eine Mindestmietdauer von einem Jahr vereinbart wird.

Ausstattung

Badewanne eingefliest, Fern-/Zentralheizung

Vermietungsablauf

Fair und digital: Unser Vermietungsablauf ist datenschutzkonform und entspricht dem Allgemeinen Gleichbehandlungsgesetz.

Vermietung

degewo Köpenicker Wohnungsgesellschaft mbH

Postfach , 10772 Berlin

Die Karte kann nicht ausgespielt werden, da Sie die Google-Maps Cookies nicht akzeptiert haben. Bitte stimmen Sie den Cookie Bedingungen zu, um diesen Inhalt sehen zu können. Durch das Aktivieren werden Daten an Google übermittelt. Weitere Informationen können unserer Datenschutzerklärung entnommen werden.

Das finden Sie in der Nähe

  • Kitas, Schulen, Unis
  • Gesundheit
  • Freizeit
  • Einkauf
  • Sport
#