WeihnachtsbaumDEG_IconDEG_IconDEG_IconDEG_IconDEG_IconDEG_IconDEG_IconDEG_IconDEG_IconDEG_IconDEG_IconDEG_Icondegewo_ico_mailDEG_IconDEG_IconDEG_IconDEG_IconDEG_IconDEG_IconDEG_IconDEG_IconDEG_IconDEG_IconDEG_IconDEG_IconDEG_IconDEG_IconDEG_IconDEG_IconDEG_IconDEG_IconDEG_IconDEG_Icon
Objekt-Nr.: W1150-21806-0077-0202

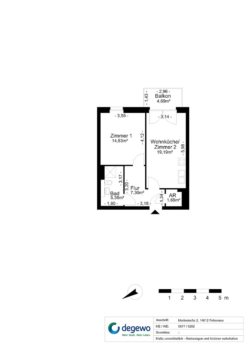
Helle 2-Zimmer-Wohnung im Neubau

Merlinstraße 2 | 14612 Falkensee
  • Nettokaltmiete: 684,86 €
  • Kaution: drei Nettokaltmieten
  • Betriebskosten (kalt): 94,86 €
  • Betriebskosten (warm): 76,60 €
  • Betriebskosten (kalt)/m²: 1,87 €
  • Betriebskosten (warm)/m²: 1,51 €
856,32 € Gesamt

Objektdetails

Zimmer 2
Wohnfläche 50,73 m²
Verfügbar ab ab sofort
Objektart Wohnung
Etage / Anzahl Etagen 2 / 3
Baujahr 2024
WBS benötigt Nein

Energieausweisdaten

Energieeffizienz B
Ausweisart Bedarf
Primärer Energieträger Fernwärme

Beschreibung

Sonstiges

Mindestmietdauer
Das Mietverhältnis wird für unbestimmte Zeit geschlossen und kann mit der gesetzlichen Kündigungsfrist gekündigt werden. Bitte beachten Sie, dass im Mietvertrag eine Mindestmietdauer von einem Jahr vereinbart wird.

Ausstattung

bodenliegende Dusche, Balkon/Loggia, Fußbodenheizung, Aufzug, Aufzug ebenerdig, Fern-/Zentralheizung, Fernwarmwasserversorgung

Vermietungsablauf

Fair und digital: Unser Vermietungsablauf ist datenschutzkonform und entspricht dem Allgemeinen Gleichbehandlungsgesetz.

Vermietung

degewo City Wohnungsgesellschaft mbH

Postfach , 10772 Berlin

Kontakt

Die Karte kann nicht ausgespielt werden, da Sie die Google-Maps Cookies nicht akzeptiert haben. Bitte stimmen Sie den Cookie Bedingungen zu, um diesen Inhalt sehen zu können. Durch das Aktivieren werden Daten an Google übermittelt. Weitere Informationen können unserer Datenschutzerklärung entnommen werden.

Das finden Sie in der Nähe

  • Kitas, Schulen, Unis
  • Gesundheit
  • Freizeit
  • Einkauf
  • Sport
#