attraktive Gewerbefläche in Kreuzberg zu vermieten

  • MedienGewerbeansichtPrimärbild.JPG
  • MedienGewerbeansichtKiezansicht.JPG
  • MedienGewerbeansichtKiezansicht.JPG
  • MedienGrundrissPrimärbild.jpg
4.072,08
Euro Gesamtmiete
157,05
nach Vereinbarung
frei ab

Kosten

Nettokaltmiete
2.983,95 €
Betriebskosten (kalt)
437,97 €
Betriebskosten (kalt)/m²
2,79 €
Kaution
drei Bruttomieten

Objektdetails

Gesamtfläche
157,05 m²
frei ab
nach Vereinbarung
Objektart
Laden/Einzelhandel
Baujahr
1982

Energiedaten

Ausweisart
Verbrauch
Primärer Energieträger
Fernwärme

Beschreibung

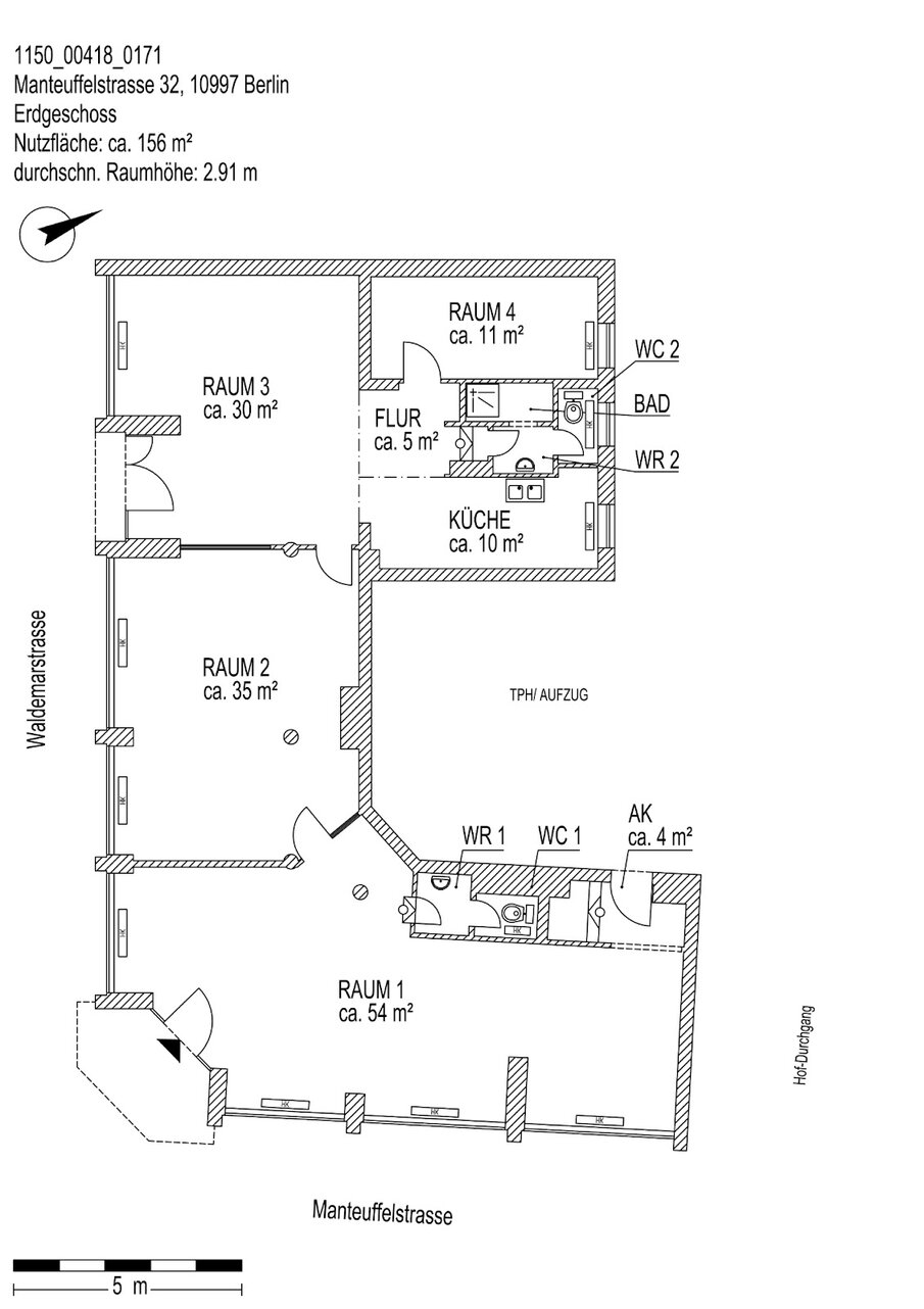
Wir bieten eine Gewerbefläche in beliebter Krezuberger Kiezlage zur Vermietung an. Die Einheit hat zwei straßenseitige ebenerdige Zugänge und ist mit großen Schaufensterflächen ausgestattet.
Zusätzlich können wir Ihnen einen Kellerraum mit 40 m² zur Verfügung stellen. Bisher wurde die Fläche als Bäckerei betrieben.
Bitte nehmen Sie den Erstkontakt über unser Kontaktformular auf. Bitte benennen Sie uns auf jeden Fall den gewünschten Nutzungszweck.

Adresse: Audre-Lorde-Straße 48, 10997 Berlin

Das finden Sie in der Nähe

Filter ausblenden Filter einblenden

Kitas, Schulen, Unis

Gesundheit

Freizeit

Einkauf

Sport

Lage

Autobahn 6 km / 20 min mit dem Auto
Bus 150 m / 2 min fußläufig
S-Bahn 2 km / 32 min fußläufig
U-Bahn 450 m / 7 min fußläufig

Wichtige Hinweise

Zusammensetzung der Konditionen
Die Konditionen setzen sich wie folgt zusammen:

Nettokaltmiete: 2.983,95 €, 19,00 €/m²
Vorauszahlung kalte Betriebskosten: 193,09 €, 1,23 €/m²
Vorauszahlung Heiz-/Warmwasserkosten: 244,88 €, 1,56 €/m²
Zwischensumme netto: 3.421,92 €, 21,79 €/m²
ggf. zzgl. 19% Umsatzsteuer: 650,16 €
Miete brutto: 4.072,08 €, 25,93 €/m²


degewo erhebt die Umsatzsteuer auf Miet- und Nebenkostenvorauszahlungen. Sollte Ihr Unternehmen nicht vorsteuerabzugsberechtigt sein, prüfen wir gerne einen Verzicht.

Vermietung

Sczygiol, Potsdamer Straße 60, 10785 Berlin

Anfrage senden