*Neubau in Altglienicke – mit WBS 180 - Ab sofort verfügbar!*

  • MedienAußenansichtPrimärbid.JPG
  • MedienAußenansicht.JPG
  • MedienAußenansicht.JPG
  • MedienAußenansicht.JPG
  • MedienAußenansicht.JPG
  • Balkon
  • Flur 1
  • Flur 1
  • Flur 2
  • Küchenzeile
  • Zimmer 1
  • Zimmer 2
  • Zimmer 3
  • Zimmer 4
  • Badezimmer
  • Badezimmer
  • WC Bad
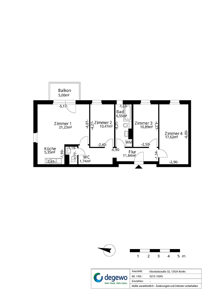
  • MedienGrundrissPrimärbild.JPG
  • MedienGrundrissPrimärbild.JPG
  • 1100_41908_0272
1.179,10
Euro Warmmiete
88,19
4
Zimmer
01.05.2027
frei ab
WBS-Pflicht

Kosten

Nettokaltmiete
837,81 €
Betriebskosten (kalt)
186,08 €
Betriebskosten (warm)
155,21 €
Betriebskosten (kalt)/m²
2,11 €
Betriebskosten (warm)/m²
1,76 €
Kaution
drei Nettokaltmieten

Objektdetails

Zimmer
4
Wohnfläche
88,19 m²
frei ab
01.05.2027
Objektart
Wohnung
Etage
2 von 3
Baujahr
2026
WBS-Pflicht

Energiedaten

Energieeffizienz
B
Ausweisart
Bedarf
Primärer Energieträger
Fernwärme

Ausstattung

Mit WBS
Bad mit Fenster
Badewanne
Gäste-WC

Beschreibung

Im Neubauprojekt „Quartier der Vielfalt“ im Stadtteil Altglienicke entstehen insgesamt 420 Wohnungen in 28 Gebäuden für Familien, Paare, Singles und Senior*innen. Mehr als die Hälfte aller Wohnungen sind vom Land Berlin gefördert. 173 Wohnungen sind barrierefrei.

Im repräsentativen Eingangsbereich befindet sich in jedem Haus ein Kinderwagenabstellraum. Alle Wohnungen sind mit einem Balkon oder einer Terrasse ausgestattet. Zu jeder Wohnung gehört ein quartiersbezogener Keller. Teilweise befinden sich in den Wohnungen zusätzliche Abstellräume. Im Wohnumfeld entstehen Spielplätze, PKW-Außenstellplätze sowie überdachte Fahrradstellplätze. Wir errichten direkt im Quartier eine KITA und mehrere Gewerbeflächen.

Adresse: Kleeblattstraße 32, 12524 Berlin

Das finden Sie in der Nähe

Filter ausblenden Filter einblenden

Kitas, Schulen, Unis

Gesundheit

Freizeit

Einkauf

Sport

Lage

Bus: 160; 163;
S-Bahnlinien: S9; S45; S85

Ausstattung

Bad mit Fenster, 2. WC / Gäste WC, Badewanne eingefliest, Balkon/Loggia, Abstellraum, Fußbodenheizung, Fern-/Zentralheizung, Fernwarmwasserversorgung

Wichtige Hinweise

Bitte beachten Sie, dass zur Anmietung der Wohnung ein Wohnberechtigungsschein (WBS) 180 benötigt wird.

Bei der hier veröffentlichten Wohnung handelt es sich um eine Beispielwohnung. Die veröffentlichten Innenansichten sind Fotos einer beispielhaften 4-Zimmer-Wohnung und bilden nicht diese Wohnung ab. Sie dienen lediglich dazu, einen Eindruck zu erhalten. Dies gilt ebenfalls für den beigefügten 360°-Rundgang.

Mindestmietdauer
Das Mietverhältnis wird für unbestimmte Zeit geschlossen und kann mit der gesetzlichen Kündigungsfrist gekündigt werden. Bitte beachten Sie, dass im Mietvertrag eine Mindestmietdauer von einem Jahr vereinbart wird.

WBS*-Schnellcheck

Für den Schnellcheck:

Wählen Sie die Personenzahl in Ihrem Haushalt und geben Sie das Jahreshaushaltseinkommen (netto) an.

* Wohnberechtigungsschein.
Hinweis: Alle Ergebnisse des WBS-Rechners sind ohne Gewähr. Die Überprüfung der jeweiligen Einkommenssituation ist wesentlich komplexer und erfolgt durch das Wohnungsamt. Sofern sich aus dem Schnellcheck eine Chance auf einen WBS ergibt, empfehlen wir Ihnen, einen WBS beim zuständigen Wohnungsamt zu beantragen.

Ihr Ergebnis

Vermietung

degewo AG, Postfach, 10772 Berlin

Anfrage senden